K103
type: residential, interior
size: 83 m2
status: completed
year: 2015
team: Agnieszka Owsiany, Adam Wiercinski
photos: Przemysław Turlej
Wyróżnienie w konkursie Foornifest 2016 wnętrza publicznie w kategorii hotele. /
Mention in Foornifest 2016 public space competition in hotels category.
PL
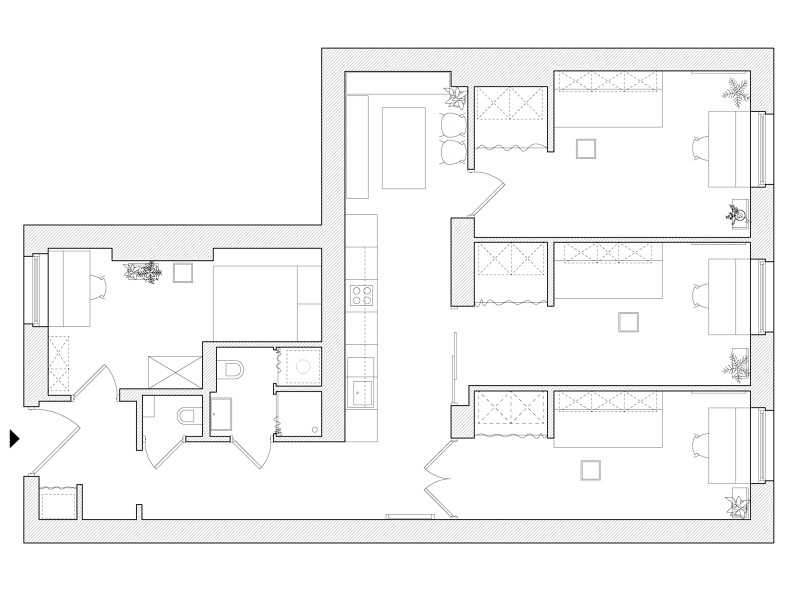
Mieszkanie dla studentów mieści się w kamienicy z lat 30 w samym centrum Poznania. Ze względu na przeznaczenie miejsca, 83 m2 podzielone zostały na 4 niezależne pokoje, część wspólną – kuchnię z jadalnią umieszczone w dużym korytarzu łączącym sypialnie oraz dwie łazienki. W pokojach zbudowano garderoby - ukryte za zasłonami tworzą pojemną przestrzeń do przechowywania, a dodatkowo stanowią przegrodę akustyczną między strefą sypialni, a korytarzem. Część mebli - biurka połączone z osłonami na grzejniki, tablice, małe stoliki, stół jadalny z ławami do kompletu oraz stelaże umywalek w łazienkach zostały zaprojektowane specjalnie do tej przestrzeni. Żeby podkreślić charakter mieszkania na wynajem, we wnętrzu pojawiły się elementy identyfikacji – znaczki z numerami pokojów oraz symbolami łazienki i toalety. W części wspólnej stanęła oryginalna drabinka gimnastyczna, która wpisuje się w studencki klimat miejsca.
W mieszkaniu zostały zachowane oryginalne elementy wnętrza – drzwi z naświetlami, skrzynkowe okna i drewniana podłoga, stąd jego kolorystyka ogranicza się do białego i szarego koloru, który uwydatnia cenne fragmenty z lat 30.
/
EN
Students apartment is placed in 30s building in the center of Poznan. Because of its purpose, 83 sq. meters were divided into 4 independent rooms, a common space – kitchen and a dining area placed in a spacious corridor, bathroom and a toilet. Each room has its own build-in wardrobe, hidden behind curtain, that is not only a spacious storage but also separates sleeping area from the corridor.
Some of the furniture like desks combined with radiator covers, small tables, magnetic boards, dining table and benches have been designed specifically for this space. To highlight apartment’s rental character in the interior appeared identification elements - room numbers and symbols of bathroom and toilet. In the common part you can find original gymnastic ladder that fits perfectly to the students apartment theme plus can be very useful.
Original elements of this apartment like doors with transoms, casement windows and wooden floor were carefully preserved hence interior color is limited to white and gray that highlights the valuable pieces from the 30s.
PLAN NOW / BEFORE
AXONOMETRY
















size: 83 m2
status: completed
year: 2015
team: Agnieszka Owsiany, Adam Wiercinski
photos: Przemysław Turlej
Wyróżnienie w konkursie Foornifest 2016 wnętrza publicznie w kategorii hotele. /
Mention in Foornifest 2016 public space competition in hotels category.
PL
Mieszkanie dla studentów mieści się w kamienicy z lat 30 w samym centrum Poznania. Ze względu na przeznaczenie miejsca, 83 m2 podzielone zostały na 4 niezależne pokoje, część wspólną – kuchnię z jadalnią umieszczone w dużym korytarzu łączącym sypialnie oraz dwie łazienki. W pokojach zbudowano garderoby - ukryte za zasłonami tworzą pojemną przestrzeń do przechowywania, a dodatkowo stanowią przegrodę akustyczną między strefą sypialni, a korytarzem. Część mebli - biurka połączone z osłonami na grzejniki, tablice, małe stoliki, stół jadalny z ławami do kompletu oraz stelaże umywalek w łazienkach zostały zaprojektowane specjalnie do tej przestrzeni. Żeby podkreślić charakter mieszkania na wynajem, we wnętrzu pojawiły się elementy identyfikacji – znaczki z numerami pokojów oraz symbolami łazienki i toalety. W części wspólnej stanęła oryginalna drabinka gimnastyczna, która wpisuje się w studencki klimat miejsca.
W mieszkaniu zostały zachowane oryginalne elementy wnętrza – drzwi z naświetlami, skrzynkowe okna i drewniana podłoga, stąd jego kolorystyka ogranicza się do białego i szarego koloru, który uwydatnia cenne fragmenty z lat 30.
/
EN
Students apartment is placed in 30s building in the center of Poznan. Because of its purpose, 83 sq. meters were divided into 4 independent rooms, a common space – kitchen and a dining area placed in a spacious corridor, bathroom and a toilet. Each room has its own build-in wardrobe, hidden behind curtain, that is not only a spacious storage but also separates sleeping area from the corridor.
Some of the furniture like desks combined with radiator covers, small tables, magnetic boards, dining table and benches have been designed specifically for this space. To highlight apartment’s rental character in the interior appeared identification elements - room numbers and symbols of bathroom and toilet. In the common part you can find original gymnastic ladder that fits perfectly to the students apartment theme plus can be very useful.
Original elements of this apartment like doors with transoms, casement windows and wooden floor were carefully preserved hence interior color is limited to white and gray that highlights the valuable pieces from the 30s.
PLAN NOW / BEFORE
AXONOMETRY




















































