STARGARD
type: public, urban planning
size: 20 ha
location: Stargard Szczecinski, Poland
status: competition
year: 2014
team: UGO architecture - Hugon Kowalski / Adam Wiercinski
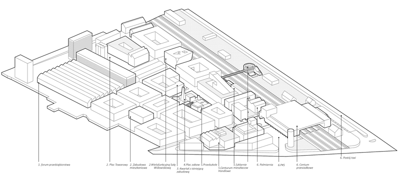
Projekt zagospodarowania terenu pomiędzy ulicą Dworcową i Towarową w Stargardzie Szczecińskim. /
Urban development between Dworcowa and Towarowa streets in Stargard Szczecinski.
Rejon ulicy Dworcowej i Towarowej będący przedmiotem opracowania konkursowego jest miejscem w którym zbiegają się cztery ważne obszary Stargardu Szczecińskiego. Od strony północnej obszar przemysłowy – fabryka Luxpol, od południa stare koszary wojskowe i kolejowa wieża ciśnień, od wschodu Dworzec PKP i Stare Miasto, od zachodu natomiast zabudowa mieszkaniowa. Te cztery obszary zdeterminowały podział funkcjonalny opracowywanego terenu. W przedstawionym projekcie zabudowa mieszkaniowa usytułowana została w zachodniej części działki, część handlowa w części południowej przy ulicy Szczecińskiej, część usługowo-biurowa wraz z Centrum Przesiadkowym w części wschodniej (południowo-wschodniej).
Ważne funkcjonalnie i reprezentatywne dla miasta obiekty (Wielofunkcyjna Sala Widowiskowa oraz Centrum Przesiadkowe) w opracowaniu wykonane zostały z czerwonej cegły. O wyborze tego materiału zdecydowała analiza najważniejszych dla tożsamości miasta budynków. Z cegły wykonane zostały liczne w Stargardzie średniowieczne baszty ( m.in. Baszta Morze Czerwone, Baszta Białogłówka) czy wieże (m.in. wieża Ratuszowa, Kolegiaty NMP czy kościoła pod wezwaniem św. Jana). Dzięki temu dominanty zamykające ważne w opracowaniu osie wpisują się w dotychczasową panoramę miasta.
CENTRUM PRZESIADKOWE
Obecny budynek Dworca PKP przez swoją dobrą lokalizację- łatwe dojście do Starego Miasta zatrzymuje swoją funkcje, zostanie jednak odnowiony do stanu historycznego. Dworzec PKS i przystanek dla minibusów natomiast umieszczony został w Centrum Przesiadkowym położonym po drugiej stronie torów na wysokości Dworca PKP. Zaprojektowane Centrum Przesiadkowe z Dworcem kolejowym łączy przejście podziemne, z którego bezpośrednio użytkownicy mogą przejść na perony kolejowe, platformy przystanku PKS/ mikrobusów, do centrum handlowego czy na parkingi park and ride. Budynek Centrum Przesiadkowego jako jeden z najważniejszych funkcjonalnie na opracowywanym obszarze zaprojektowany został z czerwonej cegły. Dzięki swojej formie stanowi swoistą bramę widokową na Dworzec Kolejowy i ulicę Adama Mickiewicza. Przed budynkiem Centrum od strony ulicy Towarowej usytułowany został plac miejski z widokiem na Wieże Ciśnień. W projekcie zachowany został drzewostan znajdujący się przy obecnym dworcu PKS, w nowym opracowaniu tworzy on aleje drzew prowadzącą do nowego budynku Centrum Przesiadkowego.
CZĘŚĆ HANDLOWA
W opracowaniu na obszarze od ulicy Szczecińskiej zakładamy powstanie Centrum Handlowego oraz obiektu rekreacyjnego –krytej pływalni. Budynek Centrum Handlowego zaprojektowany został jako dominanta zamykająca oś ulicy Towarowej. Umieszczenie obiektów handlowo-usługowych w tej części opracowywanego obszaru motywowane jest stworzeniem pewnego rodzaju panelu akustycznego i bariery bezpieczeństwa dla mieszkańców zaprojektowanych budynków mieszkalnych przed ruchliwą i głośną ulicą Szczecińską.
CZĘŚĆ MIESZKALNA
Dzięki ograniczonemu ruchowi kołowemu w części mieszkalnej, przestrzeń między budynkami jest przyjazna dla mieszkańców. Ma więcej wspólnego z przyjaznym placem miejskim niż z drogą osiedlową. Centrum części mieszkalnej jest przedszkole umiejscowione w istniejących budynku przy ulicy Towarowej. Przy odnowionym budynku znajduje się park i plac zabaw dla mieszkańców. Wszystkie zaprojektowane w tej części budynki mają maksymalnie cztery kondygnacje wysokości.
CZĘŚĆ BIUROWO-USŁUGOWA
Część biurowo-usługowa umiejscowiona została przy torach kolejowych. Pełni rolę bufora akustycznego dla mieszkańców –chroniąc ich przed hałasem związanym z ruchem kolejowym. Przy Centrum Przesiadkowym zaprojekowana została niewielka Palmiarni. Szklany budynek widoczny z dworca PKP, będzie pozytywnie wpływał na pierwsze wrażenie podróżnych, kreował pozytywne skojarzenia. Najważniejszym obiektem tej części opracowania jest jednak Wielofunkcyjna Sala Widowiskowa. Zamyka ona oś Placu Targowego i ul. Mikołaja Reja . By podkreślić że jest to budynek użyteczności publicznej ważny dla tożsamości miasta Sala Widowiskowa zaprojektowana została z czerwonej cegły.
CZĘŚĆ REKREACYJNA
Część rekreacyjna umieszczona została przy torach kolejowych wzdłuż ulicy Dworcowej. Rozciąga się od budynku Dworca PKP aż do ulicy Marii Konopnickiej. Zakładamy odtworzenie historycznej alejki spacerowej. Ponadto na tym obszarze znajdą się: ścieżki rowerowe, restauracja i kawiarnia przy Dworcu głównie dla podróżnych, pola do gry w bulle, klub muzyczny, ścieżka łącząca z platformą z zabytkową lokomotywą, trybuna ze sceną plenerową, otwarta siłownia, boisko do koszykówki, małe boiska do piłki nożnej, tenis stołowy, skatepark, arena do jazdy na rolkach/zimą lodowisko, wypożyczalnia sprzętu sportowego, Ścianki wspinaczkowe, szatnie z zapleczem sanitarnym, plac targowy, z małą gastronomią, ogródkami kawiarnianymi, możliwością organizacji małych imprez plenerowych.














size: 20 ha
location: Stargard Szczecinski, Poland
status: competition
year: 2014
team: UGO architecture - Hugon Kowalski / Adam Wiercinski
Projekt zagospodarowania terenu pomiędzy ulicą Dworcową i Towarową w Stargardzie Szczecińskim. /
Urban development between Dworcowa and Towarowa streets in Stargard Szczecinski.
Rejon ulicy Dworcowej i Towarowej będący przedmiotem opracowania konkursowego jest miejscem w którym zbiegają się cztery ważne obszary Stargardu Szczecińskiego. Od strony północnej obszar przemysłowy – fabryka Luxpol, od południa stare koszary wojskowe i kolejowa wieża ciśnień, od wschodu Dworzec PKP i Stare Miasto, od zachodu natomiast zabudowa mieszkaniowa. Te cztery obszary zdeterminowały podział funkcjonalny opracowywanego terenu. W przedstawionym projekcie zabudowa mieszkaniowa usytułowana została w zachodniej części działki, część handlowa w części południowej przy ulicy Szczecińskiej, część usługowo-biurowa wraz z Centrum Przesiadkowym w części wschodniej (południowo-wschodniej).
Ważne funkcjonalnie i reprezentatywne dla miasta obiekty (Wielofunkcyjna Sala Widowiskowa oraz Centrum Przesiadkowe) w opracowaniu wykonane zostały z czerwonej cegły. O wyborze tego materiału zdecydowała analiza najważniejszych dla tożsamości miasta budynków. Z cegły wykonane zostały liczne w Stargardzie średniowieczne baszty ( m.in. Baszta Morze Czerwone, Baszta Białogłówka) czy wieże (m.in. wieża Ratuszowa, Kolegiaty NMP czy kościoła pod wezwaniem św. Jana). Dzięki temu dominanty zamykające ważne w opracowaniu osie wpisują się w dotychczasową panoramę miasta.
CENTRUM PRZESIADKOWE
Obecny budynek Dworca PKP przez swoją dobrą lokalizację- łatwe dojście do Starego Miasta zatrzymuje swoją funkcje, zostanie jednak odnowiony do stanu historycznego. Dworzec PKS i przystanek dla minibusów natomiast umieszczony został w Centrum Przesiadkowym położonym po drugiej stronie torów na wysokości Dworca PKP. Zaprojektowane Centrum Przesiadkowe z Dworcem kolejowym łączy przejście podziemne, z którego bezpośrednio użytkownicy mogą przejść na perony kolejowe, platformy przystanku PKS/ mikrobusów, do centrum handlowego czy na parkingi park and ride. Budynek Centrum Przesiadkowego jako jeden z najważniejszych funkcjonalnie na opracowywanym obszarze zaprojektowany został z czerwonej cegły. Dzięki swojej formie stanowi swoistą bramę widokową na Dworzec Kolejowy i ulicę Adama Mickiewicza. Przed budynkiem Centrum od strony ulicy Towarowej usytułowany został plac miejski z widokiem na Wieże Ciśnień. W projekcie zachowany został drzewostan znajdujący się przy obecnym dworcu PKS, w nowym opracowaniu tworzy on aleje drzew prowadzącą do nowego budynku Centrum Przesiadkowego.
CZĘŚĆ HANDLOWA
W opracowaniu na obszarze od ulicy Szczecińskiej zakładamy powstanie Centrum Handlowego oraz obiektu rekreacyjnego –krytej pływalni. Budynek Centrum Handlowego zaprojektowany został jako dominanta zamykająca oś ulicy Towarowej. Umieszczenie obiektów handlowo-usługowych w tej części opracowywanego obszaru motywowane jest stworzeniem pewnego rodzaju panelu akustycznego i bariery bezpieczeństwa dla mieszkańców zaprojektowanych budynków mieszkalnych przed ruchliwą i głośną ulicą Szczecińską.
CZĘŚĆ MIESZKALNA
Dzięki ograniczonemu ruchowi kołowemu w części mieszkalnej, przestrzeń między budynkami jest przyjazna dla mieszkańców. Ma więcej wspólnego z przyjaznym placem miejskim niż z drogą osiedlową. Centrum części mieszkalnej jest przedszkole umiejscowione w istniejących budynku przy ulicy Towarowej. Przy odnowionym budynku znajduje się park i plac zabaw dla mieszkańców. Wszystkie zaprojektowane w tej części budynki mają maksymalnie cztery kondygnacje wysokości.
CZĘŚĆ BIUROWO-USŁUGOWA
Część biurowo-usługowa umiejscowiona została przy torach kolejowych. Pełni rolę bufora akustycznego dla mieszkańców –chroniąc ich przed hałasem związanym z ruchem kolejowym. Przy Centrum Przesiadkowym zaprojekowana została niewielka Palmiarni. Szklany budynek widoczny z dworca PKP, będzie pozytywnie wpływał na pierwsze wrażenie podróżnych, kreował pozytywne skojarzenia. Najważniejszym obiektem tej części opracowania jest jednak Wielofunkcyjna Sala Widowiskowa. Zamyka ona oś Placu Targowego i ul. Mikołaja Reja . By podkreślić że jest to budynek użyteczności publicznej ważny dla tożsamości miasta Sala Widowiskowa zaprojektowana została z czerwonej cegły.
CZĘŚĆ REKREACYJNA
Część rekreacyjna umieszczona została przy torach kolejowych wzdłuż ulicy Dworcowej. Rozciąga się od budynku Dworca PKP aż do ulicy Marii Konopnickiej. Zakładamy odtworzenie historycznej alejki spacerowej. Ponadto na tym obszarze znajdą się: ścieżki rowerowe, restauracja i kawiarnia przy Dworcu głównie dla podróżnych, pola do gry w bulle, klub muzyczny, ścieżka łącząca z platformą z zabytkową lokomotywą, trybuna ze sceną plenerową, otwarta siłownia, boisko do koszykówki, małe boiska do piłki nożnej, tenis stołowy, skatepark, arena do jazdy na rolkach/zimą lodowisko, wypożyczalnia sprzętu sportowego, Ścianki wspinaczkowe, szatnie z zapleczem sanitarnym, plac targowy, z małą gastronomią, ogródkami kawiarnianymi, możliwością organizacji małych imprez plenerowych.

















































