TRAPEZ
type: mobile house, prefabricated, cabin
size: 25 m2
year: 2016
team: Agnieszka Owsiany, Adam Wiercinski
Projekt prefabrykowanego domku letniskowego.
/
Project of the prefabricated summer house.
more info soon...
diagram

axonometry


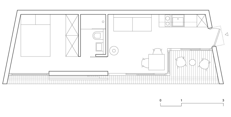
plan



size: 25 m2
year: 2016
team: Agnieszka Owsiany, Adam Wiercinski
Projekt prefabrykowanego domku letniskowego.
/
Project of the prefabricated summer house.
more info soon...
diagram

axonometry


plan






































