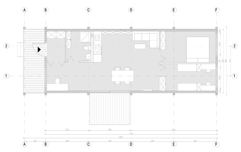
MOBILE HOUSE
type: residential, mobile
status: project
year: 2011
team: Adam Wiercinski
Projekt tymczasowego domu modułowego złożonego z prefabrykatów. /
Project of temporary modular house made of prefabricated elements.









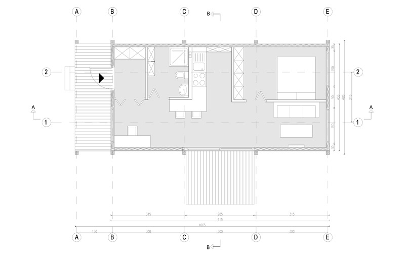
status: project
year: 2011
team: Adam Wiercinski
Projekt tymczasowego domu modułowego złożonego z prefabrykatów. /
Project of temporary modular house made of prefabricated elements.













































